Croatia,
Sibenik - House in unfurnished condition, in the center
Dalmatian coast
Note: use this button to add this real-estate to Your list.
You can access it later choosing "My List" link.
- It has an Energy Certificate
Living space: 215 m²
Land space: 94 m²
Distance from sea: 215 m
House in low maintenance condition, located in the center of Šibenik.
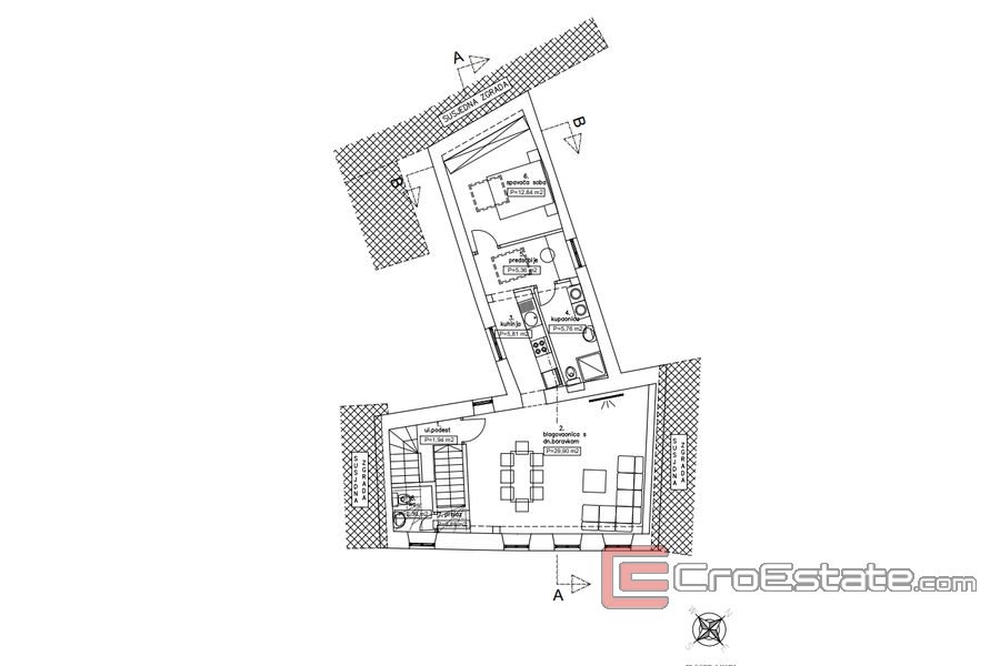
Reconstruction of the existing family building of P+2 floor plan into a P+3 floor plan building is planned. The living area is 215 m2, and it is located on a plot of land of 94 m2. A reconstruction permit has been obtained and there is a project for three apartments. The ground floor has an area of 66.54 m2 and consists of two rooms and a toilet. The first floor of 68.46 m2 consists of two bathrooms, two bedrooms, a kitchen with a dining room and a living room. On the second floor there is a kitchen with a dining room, a bathroom and a terrace, while the third floor is designed to have two bedrooms and one bathroom.
Considering the excellent location, the Mediterranean climate, the proximity to the beach and all the necessary facilities, as well as the numerous monuments under the protection of UNESCO that are located nearby, the property really offers many possibilities.

Šibenik (Croatian pronunciation: [ʃîbeniːk]) is a historic town in Croatia, located in central Dalmatia where the river Krka flows into the Adriatic Sea. Šibenik is a political, educational, transport, industrial and tourist center of Šibenik–Knin County.
Click for more
Leave your message