Croatia,
Trogir - Building plot with panoramic sea views
Dalmatian coast
Note: use this button to add this real-estate to Your list.
You can access it later choosing "My List" link.
- Sea view
Land space: 530 m²
Distance from sea: 400 m
For sale is an attractive building plot of 530 m² located on an elevated location near Trogir. The land is regular in shape, and offers panoramic views of the sea and the surrounding area. The plot also comes with a final building permit for the construction of a luxury villa on three floors.
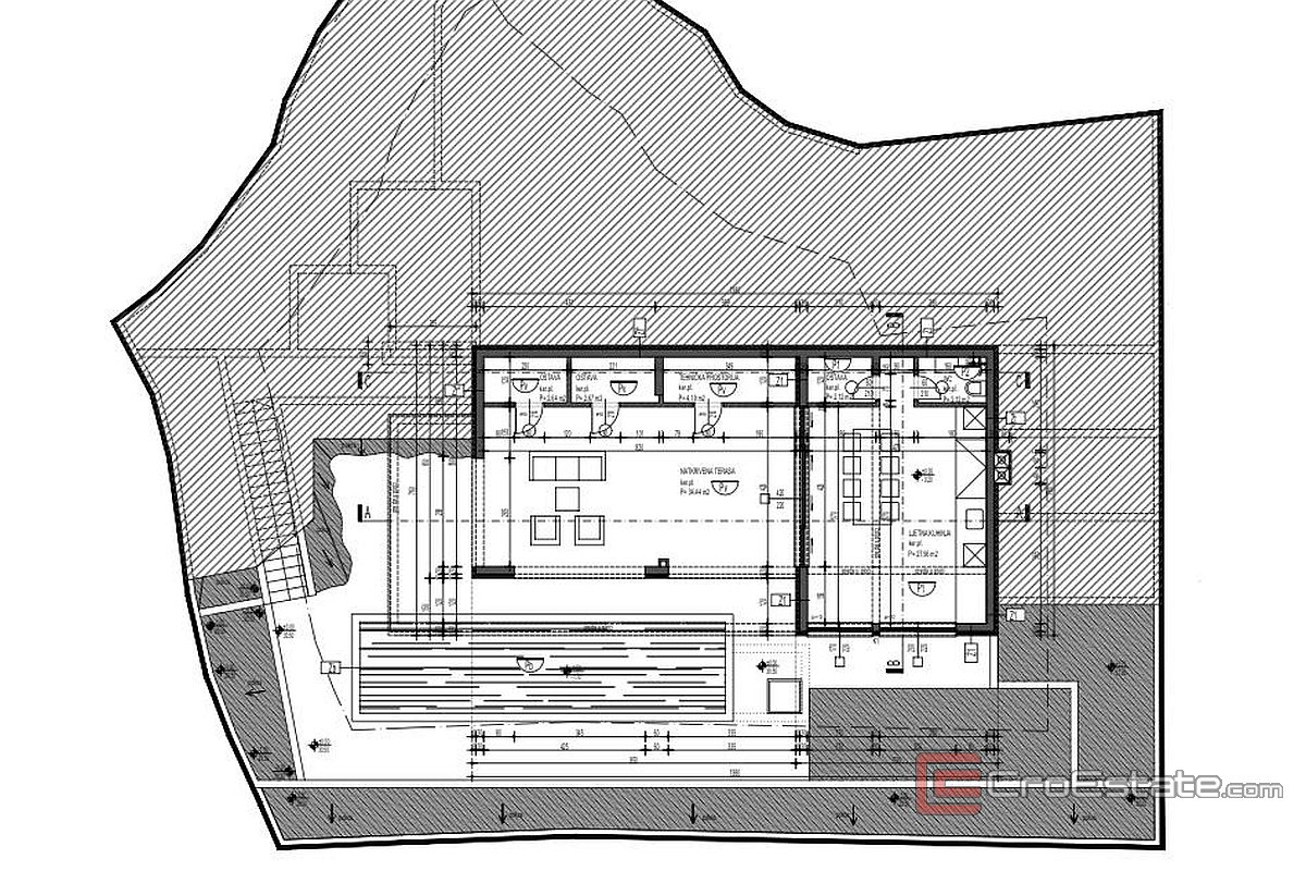
The villa will have a total area of 247 m², including an outdoor pool, terrace and sundeck. The planned project includes four spacious bedrooms with their own en-suite bathrooms and access to a terrace with sea views. The basement is designed as a living area with a summer kitchen, storage room and guest toilet. There is also a covered terrace (34.5 m²) and a technical room.
The ground floor includes three comfortable bedrooms, each with its own bathroom and access to a balcony. The master bedroom will be equipped with a walk-in wardrobe. On the top floor there is a spacious living room, kitchen, dining room in an open-space concept, and an additional bedroom with a bathroom. Here there is also an exit to a large balcony with panoramic sea views.
The project has been carefully designed so that all spaces are oriented towards the south, which allows for plenty of natural light and a beautiful view of the surroundings. Given the proximity to the sea (400 m), all necessary amenities and only 2 km from the center of Trogir and 9 km from Split airport, this land represents an ideal location for the construction of a luxury villa.

Trogir (Latin: Tragurium; Ancient Greek: Τραγύριον, Tragyrion or Τραγούριον, Tragourion Trogkir; Italian: Traù; Hungarian: Trau) is a historic town and harbour on the Adriatic coast in Split-Dalmatia County, Croatia, with a population of 10,818 (2011) and a total municipality population of 13,260 (2011). The historic city of Trogir is situated on a small island between the Croatian mainland and the island of Ciovo.
Click for more
Leave your message