Croazia,
Peljesac - Villa moderna in posizione eccellente con piscina e vista
Costa dalmata
Nota: utilizzare questo pulsante per aggiungere quest immobile alla vostra lista.
È possibile accedere in un secondo momento scegliendo La mia lista link.
- Piscina
- Vista sul mare
- Moderna
- Ha un certificato energetico
Spazio vitale: 162 m²
Spazi terrestri: 746 m²
Numero di camere: 4
Numero di bagni: 3
Distanza dal mare: 100 m
Villa moderna in posizione perfetta in costruzione, con piscina e vista sul mare aperto, in vendita, situata in una posizione prestigiosa sul lato meridionale della penisola di Pelješac.
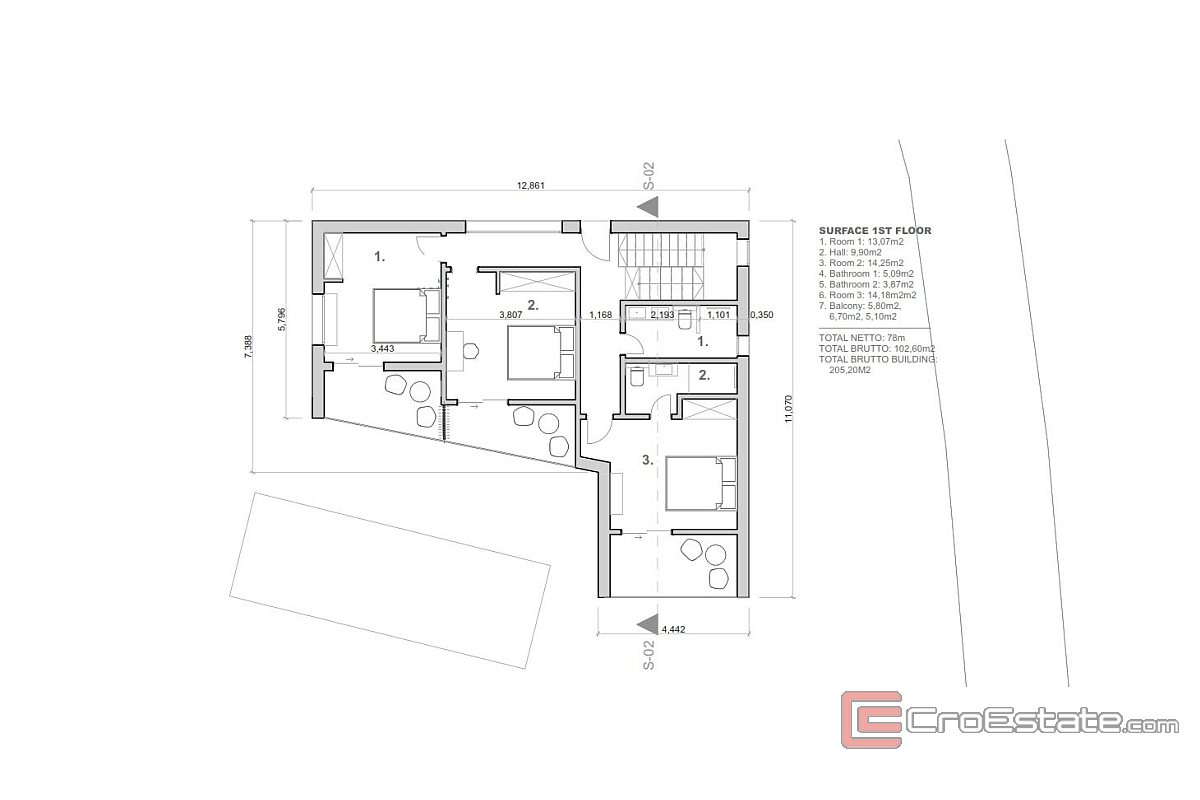
Questa splendida villa si estende su due piani, con una superficie abitabile totale di 162 m².
Il piano terra dispone di una camera da letto con bagno interno, un ampio soggiorno con cucina e accesso diretto a una terrazza con piscina, nonché un ulteriore bagno per gli ospiti.
Al piano superiore, ci sono tre camere da letto aggiuntive, una delle quali ha il proprio bagno interno. Tutte le camere sono collegate da un ampio corridoio e hanno accesso a balconi privati che offrono splendide viste sul mare.
La villa è situata su un appezzamento più grande di 629 m², mentre un appezzamento più piccolo di 117 m² è destinato al parcheggio di più veicoli, offrendo praticità e comfort aggiuntivo.
La posizione è ideale, a soli 100 metri dal mare e dalla spiaggia, con negozi, ristoranti e altri servizi facilmente accessibili a piedi.
Questa proprietà unica unisce design contemporaneo, funzionalità e ambiente naturale, rendendola un'opportunità perfetta per un investimento o una lussuosa casa di famiglia in una delle località più prestigiose di Pelješac.
La villa è attualmente in costruzione e viene venduta dallo sviluppatore come una proprietà completamente completata e attrezzata.

Peljesac (Croatian pronunciation: [pɛ̌ʎɛʃats]) (local Chakavian dialect: Pelišac; Italian: Sabbioncello) is a peninsula in southern Dalmatia[1] in Croatia. The peninsula is part of the Dubrovnik-Neretva County and is the second largest peninsula in Croatia. From the isthmus that begins at Ston, to the top of Cape Lovista, it is 65 km or 40 mi long.
Clicca per maggiori
Lascia il tuo messaggio