Hrvatska,
Brac - Dvosoban apartman s pogledom na more u izgradnji
Dalmatinski otoci
Napomena: koristite ga kako biste dodali ovaj Nekretnina na svoj popis.
Možete mu pristupiti odabiru kasnije "Moja lista" link.
- Pogled na more
- Parking
- Novogradnja
- Najbolja ponuda
Stambeni prostor: 91 m²
Broj soba: 2
Broj kupaonica: 2
Udaljenost od mora: 200 m
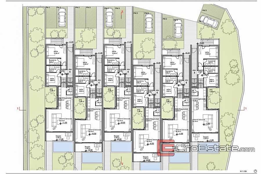
Dvosoban apartman smješten na južnoj strani otoka Brača ukupne stambene površine 91 m2 , na udaljenosti 200 m od mora.
Apartman koji se prostire dužinom cijele etaže te se nalazi na prvom katu.
Unutrašnjost se sastoji se od dnevnog boravka, kuhinje s blagovaonicom, dvije spavaće sobe, dvije kupaonice, dodatnog toaleta te prostorije za spremu. Dnevni boravak ima izlaz na loggiu južne orijentacije, ukupne površine 11.6 m2, s koje se pruža pogled na more.
Apartmanu pripada jedno parking mjesto.
Nalazi se u stambenoj zgradi u sklopu projekta od šest stambenih jedinica od kojih svaka sadrži tri apartmana. Zgrada se sastoji od četiri etaže – podrum, prizemlje i dva kata. Podrum služi kao prostor za spremu i tehniku u svrhu održavanja zgrade. Na ostalim etažama se nalaze apartmani.
Svi apartmani su sličnog koncepta i uređenja interijera, te je dostupno jos 17 apartmana na prodaju:
Dvosobni apartmani na etaži prizemlja s pripadajućim vrtom i bazenom: od 338 580 EUR do 356 400 EUR
Dvosobni apartmani na prvom katu s parking mjestom: od 270 900 EUR do 273 900 EUR
Dvosobni apartmani na drugom katu s parking mjestom: 333 125 EUR

Brac (pronounced [brâːtʃ]; local Chakavian: Broc, pronounced [broːts]; Latin: Bretia, Brattia; Italian: Brazza) is an island in the Adriatic Sea within Croatia, with an area of 396 square kilometres (153 sq mi),[1] making it the largest island in Dalmatia, and the third largest in the Adriatic.
Klikni za više
Pošaljite upit