Chorvatsko,
Vodice - Apartmány u moře, atraktivní lokalita.
Dalmatského pobřeží
Poznámka: Pomocí tohoto tlačítka přidat tento realitních do svého seznamu.
Můžete přistupovat to později výběrem odkazu "Můj seznam".
- Výhled na moře
- Parkoviště
- Luxusní
- Moderní
- Novostavby
- Nejlepší nabídka
- Má energetický certifikát
Obytná povrch: 99 m²
Počet pokojů: 2
Počet koupelen: 2
Vzdálenost od moře: 50 m
Celý projekt je ve výstavbě, bude spojením kvality, luxusu a skvělé lokality, nastěhování je naplánováno na léto 2023.
Velmi klidná lokalita ideální pro celoroční bydlení i pro rodinnou dovolenou. Na klidném místě, přesto v blízkosti veškeré občanské vybavenosti: obchody, restaurace, pláže, lékárny, kavárny...
Město Šibenik je vzdáleno 10 km, Národní park Krka 21 km, Přírodní park Vranské jezero 27 km, letiště 50 km.
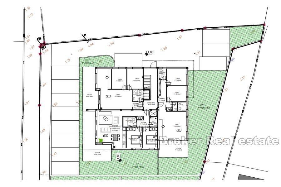
Byty na prodej:
PŘÍZEMÍ:
Byt S1, přízemí - čistá plocha 81,90 m2
Byt se skládá ze vstupní chodby, ložnice 1, ložnice 2, koupelny, kuchyně s jídelnou, obývacího pokoje a terasy 15,11 m2.
K bytu náleží zahrada 18,35 m2 a jedno parkovací stání.
Cena: 305 000,00 € – PRODÁNO!
Byt S2, přízemí - čistá plocha 107,93 m2
Byt se skládá ze vstupní chodby, ložnice 1, ložnice 2, koupelny, WC, kuchyně s jídelnou, obývacího pokoje a terasy 12,26 m2. K bytu náleží zahrada 60,71 m2 a jedno parkovací stání.
Cena: 399 341,00 EUR
byt S3, přízemí - čistá plocha 99,37 m2
Byt se skládá ze vstupní chodby, koupelny, ložnice 1, ložnice 2, WC, kuchyně s jídelnou, obývacího pokoje a terasy 22,58 m2.
K bytu náleží zahrada 105,70m2 a jedno parkovací stání.
Cena: 367 699,00 EUR
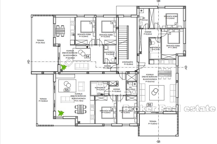
I. PODLAŽÍ:
Byt S4, 1. patro - čistá plocha 79,28m2.
Byt se skládá ze vstupní chodby, ložnice 1, ložnice 2, koupelny, kuchyně s jídelnou, obývacího pokoje a terasy 18,57 m2. K bytu náleží jedno parkovací stání.
CENA: 303 264,00 € – PRODÁNO!
byt S5, 1. patro - čistá plocha 83,34 m2.
Byt se skládá ze vstupní chodby, koupelny, ložnice 1, ložnice 2, WC, kuchyně s jídelnou, obývacího pokoje a terasy 14,18 m2.
K bytu náleží jedno parkovací stání.
Cena: 333 892,00 € – PRODÁNO!
Byt S6, 1. patro - čistá plocha 89,74m2.
Byt se skládá ze vstupní chodby, koupelny, ložnice 1, ložnice 2, WC, kuchyně s jídelnou, obývacího pokoje a terasy 11,70 m2.
K bytu náleží také jedno parkovací stání.
Cena: 343 012,00 € – PRODÁNO!
II.PATRA:
S7 Byt, 2. patro, Penthouse - čistá plocha 192,68 m2.
Byt se skládá ze vstupní chodby, schodiště, ložnice 1, ložnice 2, ložnice 3 s koupelnou, koupelna, WC, kuchyně s jídelnou, obývací pokoj, terasa 31,98 m2 a střešní terasa 52,58 m2.
K bytu náleží také jedno parkovací stání.
Cena: 751 452,00 €.
Byt S8, 2. patro, Penthouse - čistá plocha 170,34 m2.
Byt se skládá ze vstupu, chodby, schodiště, ložnice 1, ložnice 2, ložnice 3 s koupelnou, koupelna, WC, kuchyně s jídelnou, obývací pokoj, terasa 18,35 m2 a střešní terasa 77,33 m2.
K bytu náleží také jedno parkovací stání.
Cena: 680 000,00 €.

Vodice (pronounced [ʋɔ̌ditsɛ]) is a town in the Šibenik-Knin County, Croatia. It borders the Adriatic Sea and has a population of 8,875 (2011 census).
Klikněte pro více
Zanechte vzkaz